Firenze, Lupi di Toscana
Via di Scandicci, 320/c, 50143 Firenze (FI)
Benefit

Lupi di Toscana nasce dalla rigenerazione dell’ex Caserma Gonzaga, nel quadrante sud-ovest di Firenze, e rappresenta uno dei più importanti interventi di trasformazione urbana della città.

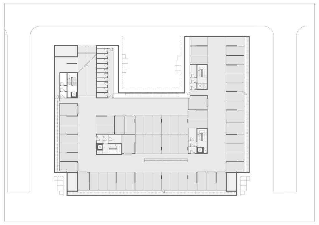
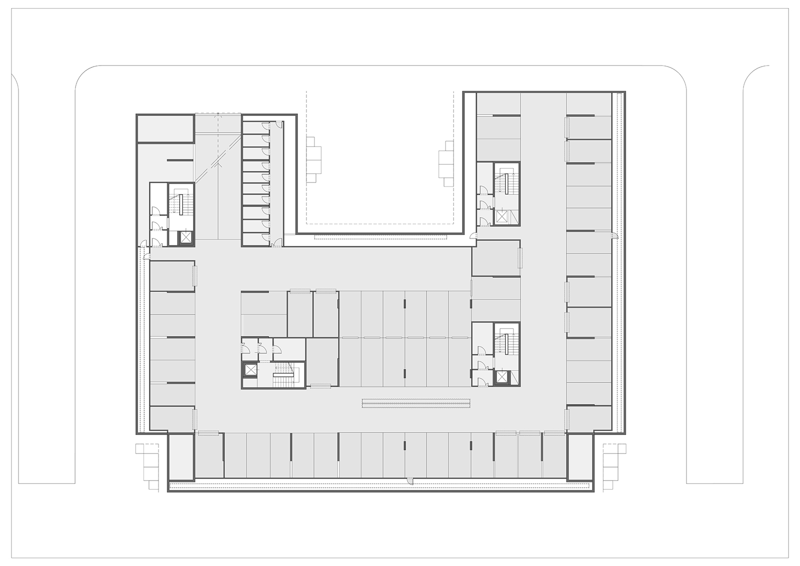
I cluster 8 e 9 ospitano quattro edifici residenziali inseriti in un nuovo disegno urbano fatto di spazi verdi, percorsi pedonali e servizi. Le residenze offrono ambienti luminosi, logge e spazi esterni privati, con soluzioni pensate per famiglie, giovani coppie e investimento.

Un progetto contemporaneo che unisce qualità architettonica, sostenibilità e connessione con la città, contribuendo alla nascita di un nuovo quartiere residenziale immerso nel verde e perfettamente collegato al centro di Firenze.

4 edifici residenziali, 120 appartamenti totali

4 piani fuori terra, residenze con giardino al piano terra, Logge e terrazze private

45 posti e 15 box auto, 10 Cantine

Nuovo quartiere Lupi di Toscana

Richiedi maggior
informazioni